BELPOL: В Беларуси нет объектов для хранения российского ядерного оружия
Коллаж: BELPOL
В белорусских воинских частях в последнее время действительно развернулись несколько крупных строек. Например, в местах расположения 465-й ракетной бригады появились ангары для российских ракетных комплексов "Искандер". Но помещений, в которых могли бы храниться ядерные заряды, нет.
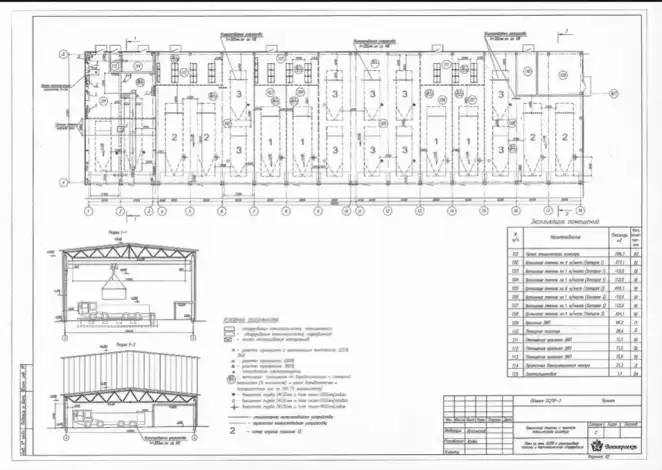
Схема ангара для российских ракетных комплексов "Искандер"
Не созданы они и на территории 1405-й артиллерийской базы боеприпасов, где также идет активная стройка. В BELPOL утверждают, что работы там были запланированы задолго до разговоров о размещении тактического ядерного оружия в Беларуси и связаны с наращиванием экспорта снарядов в Россию.
Заметили ошибку? Пожалуйста, выделите её и нажмите Ctrl+Enter

